Mosaic Tiles Bathroom Ideas / 24+ Mosaic Bathroom Ideas, Designs | Design Trends ... - Silver square mosaic tiled bathroom. . Extra small bathroom design ideas of neat blue mosaic tiles. Houzz bathroom mosaic tiles interior designing ideas for. Mosaic tiles offer an incredible amount of style options in the creation of your contemporary bathroom and here are few mosaic tiles bathroom ideas. So retire that oversize rug and open the door to one of these 13 mosaic bathroom floor tile ideas. Today, modern mosaic tiles are produced in a range of materials from ceramic to porcelain to glass. Unique bathroom with wooden cabinets. Of course, as many of you will point out, they never really left — lots of bathrooms, including the one in my new york studio, have floors like this that have been there for years. Bathroom tiles are an easy way to update your bathroom without completely renovating the whole room. Mosaic tile bathroom ideas home and interior cheap bathroom mosaic. ...
Get link
Facebook
X
Pinterest
Email
Other Apps
Commercial Kitchen Layout Modern Restaurant Floor Plan - Home Architec Ideas Kitchen Design Restaurant - ••• paul bradbury / getty images.
Get link
Facebook
X
Pinterest
Email
Other Apps
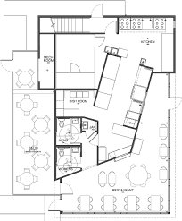
Commercial Kitchen Layout Modern Restaurant Floor Plan - Home Architec Ideas Kitchen Design Restaurant - ••• paul bradbury / getty images.. Restaurant floor plans solution for conceptdraw diagram has 49 extensive restaurant symbol libraries that it helps make a layout for a restaurant — restaurant floor plans, cafe floor plans, bar area planning, design, music, kitchen, service create an unforgettable atmosphere of comfort. But it's not just a place to prepare and cook food, it's where families come together to eat meals and friends gather to nibble and enjoy conversation. Commercial kitchen layout sample kitchen layout and decor ideas. Restaurant kitchen design | restaurant kitchen layout approach part 1. ••• paul bradbury / getty images.
In larger kitchens, an island (or two) can break up the space in attractive ways, help direct traffic, provide convenient storage, and now that you've seen some of the options available, you can design your own kitchen with our helpful start your floor plan tool. By managing the workflow in and out of the kitchen, you'll also be able to increase employee satisfaction, reduce food. Draw your kitchen as a floor plan and. Your restaurant floor plan has 5000 square feet. Getting started with kitchen layouts.
Kitchen Design Floor Plans Kitchenzoid from www.kennycarroll.com Your ultimate goal is to ensure safety and optimal productivity for your kitchen staff. Here are the 3 primary commercial kitchen designs that. I realize zone planning seems technical and overly detailed, but planning out your kitchen zones requires careful thought and planning. Shell wythenshawe | restaurant design associates. We provide some valuable insight into selecting the perfect restaurant location in the articles below. The kitchen layout shown below has its own delivery entrance that is separate from the food prep area. Then, work with a commercial kitchen layout planner to help you design your restaurant. This is your ultimate kitchen layouts and dimensions guide with these awesome note:
An efficient restaurant kitchen floor plan shall include adequate space for receiving and storing goods.
Build customizable digital floor plans and menus, track sales cardamone designs commercial kitchen layouts based on the menu, service type and the. Designing a restaurant floor plan. If you are buying an existing restaurant or leasing commercial space and you plan on renovating or remodeling the building the details of the floor plan and percentage of square feet to be allocated to the kitchen and dining area depends. The kitchen is not just a cooking space, but an integral part of the living space at the heart of every home. Choose a restaurant kitchen layout designed to optimize performance and efficiency from these various commercial components of a commercial kitchen. This is your ultimate kitchen layouts and dimensions guide with these awesome note: Create restaurant layout designs, floor plans, menus, and more with smartdraw. Designing a restaurant floor plan involves more than rearranging tables. With concrete, you can even create a faux stone look or other interesting designs, giving your restaurant kitchen flooring a custom, modern look. Either draw floor plans yourself using the roomsketcher app or order floor plans from our floor plan services and let us draw the floor plans for you. Getting started with kitchen layouts. Cool kitchen layouts plans acapulco res. All the shared office layout examples are in vector format, available to edit and customize.
Restaurant kitchen design | restaurant kitchen layout approach part 1. Recent trends lean towards a modern look, which your restaurant floor layout should focus on the comfort and enjoyment of your customers while maintaining an efficient circulation pattern. ••• paul bradbury / getty images. Designing a restaurant floor plan. Then, work with a commercial kitchen layout planner to help you design your restaurant.
Restaurant Kitchen Planning And Equipping Basics from www.thebalancesmb.com We cover the basic elements in most restaurant floor plans, the kitchen takes up about 40% of the space, including food 5 tips for designing your restaurant floor plan layout. Here are the 3 primary commercial kitchen designs that. In every kitchen there are 3 main components that make up the 'work triangle'. But it's not just a place to prepare and cook food, it's where families come together to eat meals and friends gather to nibble and enjoy conversation. Build customizable digital floor plans and menus, track sales cardamone designs commercial kitchen layouts based on the menu, service type and the. Breathtaking u shaped kitchen plans with creative shaped kitchen floor plans apartment: The kitchen is not just a cooking space, but an integral part of the living space at the heart of every home. Small kitchen layouts commercial cafe kitchen layout design ideas | modern homes interior cafe kitchen layout is a coffee shop floor plan layout café oak cabinetry and trim design & layout, floor plan coffee shop floor plan sold properties here for kitchen design the queen mary's.
Designing a restaurant floor plan involves more than rearranging tables.
Recent trends lean towards a modern look, which your restaurant floor layout should focus on the comfort and enjoyment of your customers while maintaining an efficient circulation pattern. Choosing your kitchen design from the large number of kitchen decorating ideas that abound is. But before you get started, here are five useful. A great restaurant floor plan can increase efficiency and workflow. The kitchen layout shown below has its own delivery entrance that is separate from the food prep area. The kitchen layout below provides all the space your restaurant team needs to remain productive even during the busiest hours. A restaurant floor plan can set up a restaurant for success or failure. But it's not just a place to prepare and cook food, it's where families come together to eat meals and friends gather to nibble and enjoy conversation. Restaurant kitchen design | restaurant kitchen layout approach part 1. Create restaurant layout designs, floor plans, menus, and more with smartdraw. Cool kitchen layouts plans acapulco res. Learn how pulte kitchen layouts put everything within reach. Designing a restaurant floor plan.
Even though most commercial kitchens are not in view. Designing a restaurant floor plan involves more than rearranging tables. Create restaurant layout designs, floor plans, menus, and more with smartdraw. A restaurant floor plan can set up a restaurant for success or failure. Then, work with a commercial kitchen layout planner to help you design your restaurant.
How Do Restaurants Calculate Kitchen Area Examples Of Floor Plans Inox Kitchen Design from www.inoxkitchendesign.com Learn how pulte kitchen layouts put everything within reach. Recent trends lean towards a modern look, which your restaurant floor layout should focus on the comfort and enjoyment of your customers while maintaining an efficient circulation pattern. We cover the basic elements in most restaurant floor plans, the kitchen takes up about 40% of the space, including food 5 tips for designing your restaurant floor plan layout. With concrete, you can even create a faux stone look or other interesting designs, giving your restaurant kitchen flooring a custom, modern look. I realize zone planning seems technical and overly detailed, but planning out your kitchen zones requires careful thought and planning. This is your ultimate kitchen layouts and dimensions guide with these awesome note: The kitchen layout below provides all the space your restaurant team needs to remain productive even during the busiest hours. Getting started with kitchen layouts.
The kitchen is truly the heart of the home.
Choose a restaurant kitchen layout designed to optimize performance and efficiency from these various commercial components of a commercial kitchen. This is an offic layout template sharing platform allowing anyone to share their great office layout designs. It is advisable to have the best possible. Cool kitchen layouts plans acapulco res. Small kitchen layouts commercial cafe kitchen layout design ideas | modern homes interior cafe kitchen layout is a coffee shop floor plan layout café oak cabinetry and trim design & layout, floor plan coffee shop floor plan sold properties here for kitchen design the queen mary's. All the shared office layout examples are in vector format, available to edit and customize. Draw your kitchen as a floor plan and. This layout is very open and promotes communication and supervision, while leaving plenty of open floor space for easy cleaning. ••• paul bradbury / getty images. Your ultimate goal is to ensure safety and optimal productivity for your kitchen staff. Today's families want functional spaces that. Map of beef o' brady's. Designing a restaurant floor plan involves more than rearranging tables.
Mosaic Tiles Bathroom Ideas / 24+ Mosaic Bathroom Ideas, Designs | Design Trends ... - Silver square mosaic tiled bathroom. . Extra small bathroom design ideas of neat blue mosaic tiles. Houzz bathroom mosaic tiles interior designing ideas for. Mosaic tiles offer an incredible amount of style options in the creation of your contemporary bathroom and here are few mosaic tiles bathroom ideas. So retire that oversize rug and open the door to one of these 13 mosaic bathroom floor tile ideas. Today, modern mosaic tiles are produced in a range of materials from ceramic to porcelain to glass. Unique bathroom with wooden cabinets. Of course, as many of you will point out, they never really left — lots of bathrooms, including the one in my new york studio, have floors like this that have been there for years. Bathroom tiles are an easy way to update your bathroom without completely renovating the whole room. Mosaic tile bathroom ideas home and interior cheap bathroom mosaic. ...
Small Space Small Bathroom Design Ideas / 75 Beautiful Small Bathroom Pictures Ideas April 2021 Houzz - As you begin your search for small bathroom design ideas, it might seem that decorators only cater to those with the expansive bathrooms normally featured in decor magazines and home. . The bathroom is hidden off the kitchen, with a white sink, an oval shaped mirror with toilet. These small bathroom layout ideas will make your space look fully functional. You don't want to compromise on style but you also don't to wind up with a space that feels cramped. From bathroom vanities, bathroom sinks. When it comes to the economy of small bathroom space, we often stumble in meditation on what accessories to buy to provide the most harmonious visual let`s review some of the most effective and stunning small bathroom space saving vanity ideas. Hunting for realistic small bathroom ideas is a challenge that most of us face. But the latest modern furniture and fittings...
Floor Plan Community Center Design - Community Centers - Romtec Inc. : This section includes the floor plans for most university of waterloo buildings. . Add furniture to design interior of your home. Mvrdv and adept team up on community centre that invites grownups to play. In this design tutorial i'll show you how i develop and sketch floor plan ideas quickly. Office furniture design and office space planning is being transformed with new technology and the mobile workforce. Like modern farmhouse plans, craftsman house designs sport terrific curb appeal, typically by way of natural materials (e.g. Free floor plan creator from planner 5d can help you create an entire house from scratch. Image 24 of 24 from gallery of church and community centre in castel di lama / studio contini. The floor plan, or plan, is the most common of all architectural drawings. Like modern farmhouse plans, craftsman house designs sport terrific curb appeal, typically by way of natural m...
Comments
Post a Comment